搜相似






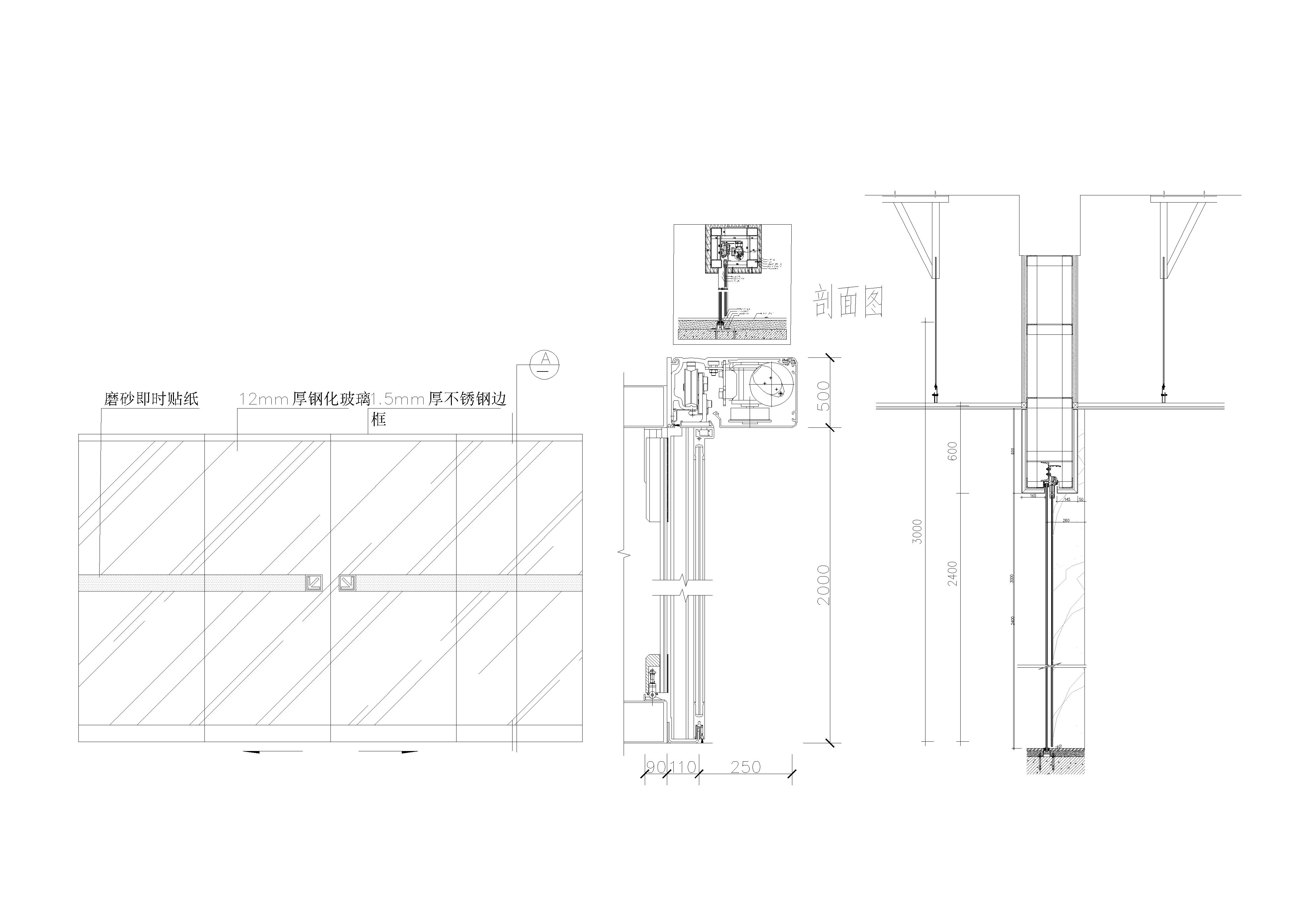
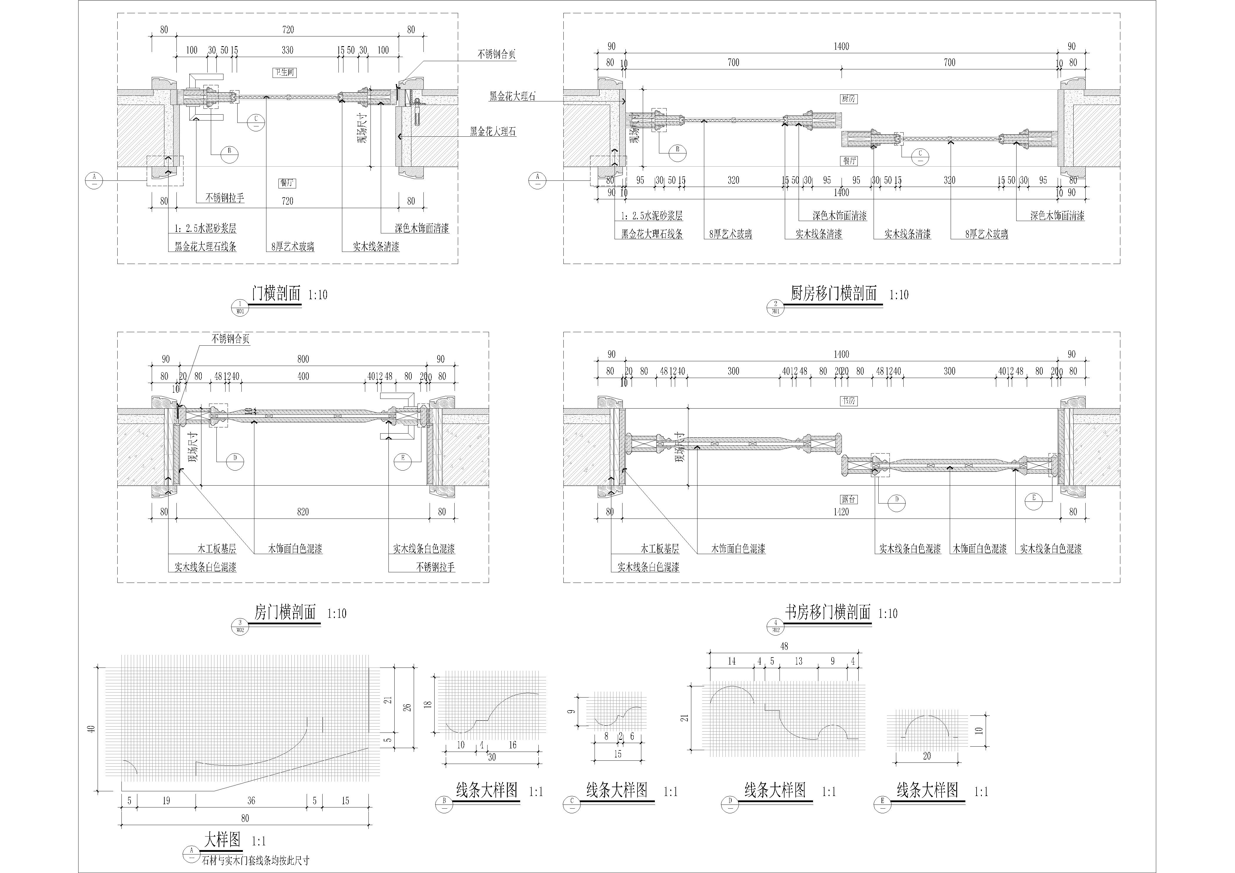
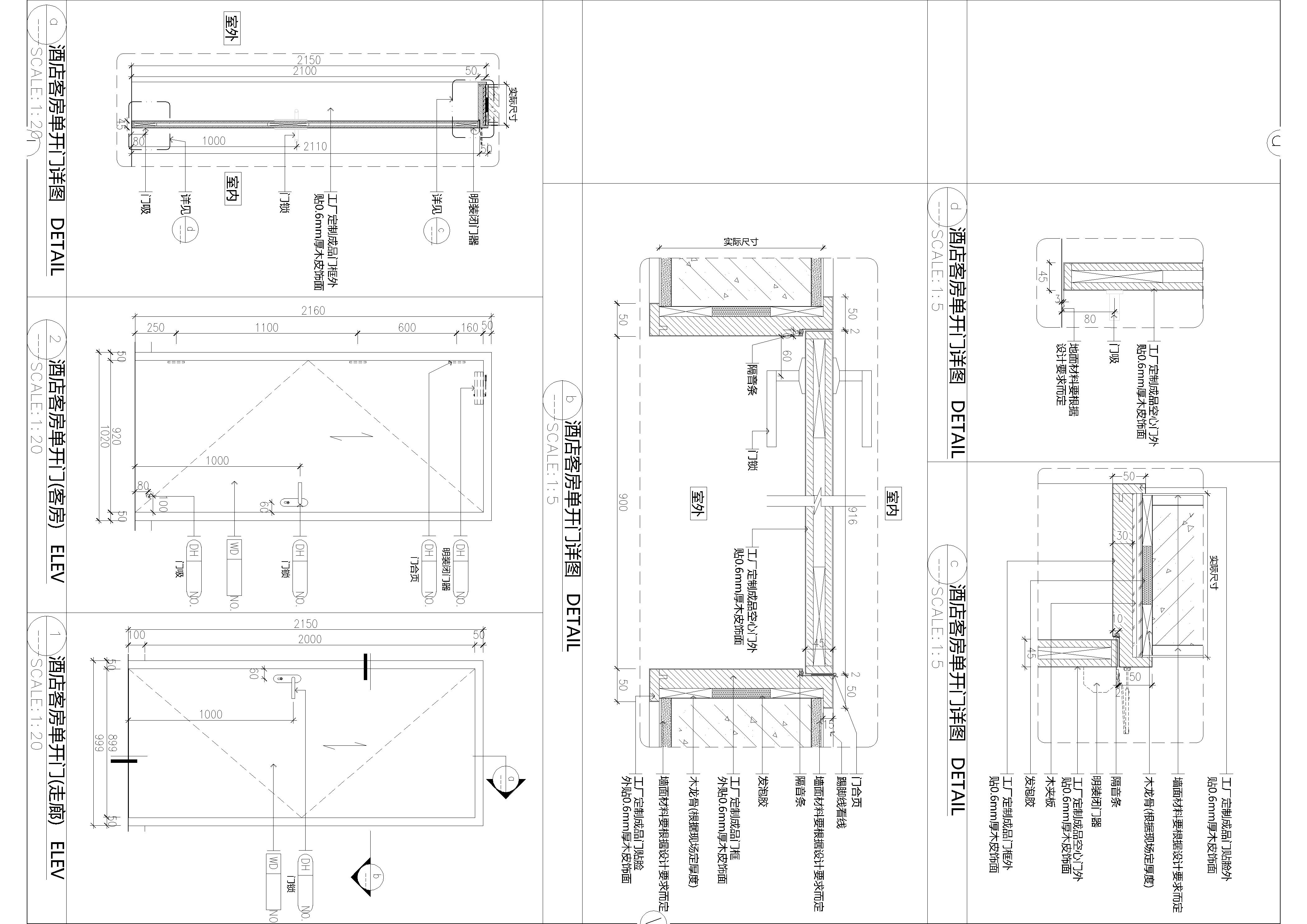
最新门及配件详图合集
下载价30.00云币,VIP专享18云币
立即下载
3天内重复下载免费
布鲁丸
作品:144
相似CAD图纸
精选中式图库 ID:148680
儿童游乐场设施器械CAD图纸 ID:147450
精选常用空调图库 ID:149602
植物平立面图库 ID:147752
无主灯灯光及吊顶设计 ID:147446
时尚艺术品及软装 ID:149592
欧式壁炉cad库 ID:146887
户外健身器材 ID:149608
超全消防图例标识_图库 ID:148702
新中式山水文化图案 ID:149586
2023年 沙发等家具精美组合图库 ID:140539
门窗家具楼梯板件动态库 ID:149262
最新潮流摆件合集 ID:149251
工程车,汽车,飞机等交通工具图集 ID:140609
常见动物昆虫类图库 ID:149618
法式护墙板雕花 ID:148694
造景石头景观置石 ID:149254
符号制图规范图例_图库 ID:148693
梁托雕花合集新版 ID:149597
门样式(带风格区分) ID:146878
各种楼梯_图库 ID:148691
电气系统图详解 ID:140587
常见飞船类图库 ID:149615
人体工程学-卫生间尺寸篇 ID:149272
最新隐形门&暗门 ID:146865
常用线条图库 ID:146889
最新CAD图库大全 ID:101756
常见户外汀步青石板路 ID:149280
100个卫生间模块 ID:147448
名师平面方案专用CAD图库 ID:148688
最新常用现代窗户 ID:149267
常见儿童上下床 ID:148695
软装定制专用图库 ID:147136
弱电智能化图库系统图例 ID:149595
2023最新电玩设备CAD图库 ID:149249
现代吊灯合集 ID:149265












