搜相似



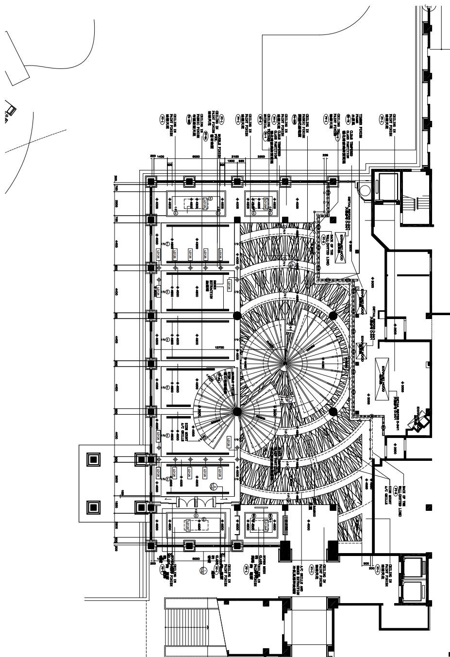
五星级酒店全日制餐厅施工图
下载价20.00云币,VIP专享12云币
立即下载
3天内重复下载免费
寒楼
作品:13
相似CAD图纸
最新现代壁灯图库 ID:148700
动态门平面100个 ID:148696
植物平立面图库 ID:147752
最新地面拼花图库(精选) ID:148678
常用乐器总汇 ID:149627
道闸模型及施工详解 ID:149620
全新网红室内家具CAD图库 ID:148704
精选最新全面欧式图库 ID:148681
法式轻奢背景墙模块 ID:149617
图库大全CAD2010 ID:101726
火锅店设计(施工图全) ID:146619
会议音响灯光器材 ID:149604
精品室内材质填充 ID:147324
CAD线条大全2 ID:101729
最新中国山水画 风景画 ID:149582
符号制图规范图例_图库 ID:148693
儿童游乐场设施器械CAD图纸 ID:147450
会议椅培训椅休闲椅 ID:149606
网红高低床 ID:149612
电气系统图详解 ID:140587
户外门头节点图(小区,楼栋等) ID:146888
常用五金管件弯头图库 ID:149589
最新网红风CAD平面模块 ID:149275
新款卫生间标识图库 ID:149591
最新法式顶面拼花及灯盘模块 ID:147758
超全人物CAD平立面图库 ID:148703
弱电智能化图库系统图例 ID:149595
磁吸轨道灯节点及灯具 ID:148701
门样式(带风格区分) ID:146878
五星级酒店全日制餐厅施工图 ID:146601
室内设计动态图库大全2 ID:146905
顶面、顶面与墙面收口节点图(附带解析说明) ID:146170
厨卫用品家电CAD动态图库 ID:147755
最新款常用垃圾桶图库 ID:149598
游乐设备图库、机械游乐设备 ID:149269
幼儿园儿童桌椅 ID:149584












